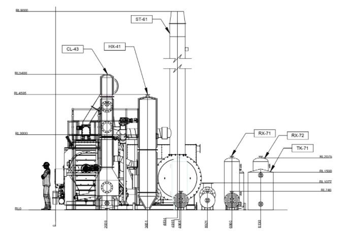
Case Studies
Biomass to Energy is focusing into Anergy solutions for Waste transformation. These case stories are including design, manufacturing, commissioning and also achieving the best performance on site with several day & night trials conducted.
Its all for one purpose: We are here for you, we are here for our Earth.
Reverse coal [willows]
... converting agricultural biomass into clean energy and carbon-negative solutions...


Thorold [waste wood]
... converting agricultural biomass into clean energy and carbon-negative solutions...
Genk Zuid [Waste MDF and Wood Residues]
... converting wood waste at 3tons per hour rate...
Hazelmere [Waste Wood]
... 3.3tons of wood waste transformation capacity with 3MW electricity capacity...
Toronto [Anaerobic Digestate]
... converts 1ton Anaerobic Digestate per hour...
Welshpool [Shredded Tyres]
... converts 2.5 tons of Shredded tyres into Pyrolysis Oil ...
Weschar [Thermal Coal]
... a record throughput of 6 tonnes per hour ...
... trials can be made with specific feedstocks ...
Drive Test Plant [Any Feedstock for Trial]
© 2026. All rights reserved.
transform@biomasstoenergy.com

BtE is a subsidiary of A1E1
















