Project name: Thorold
For further information please visit https://anergy.com


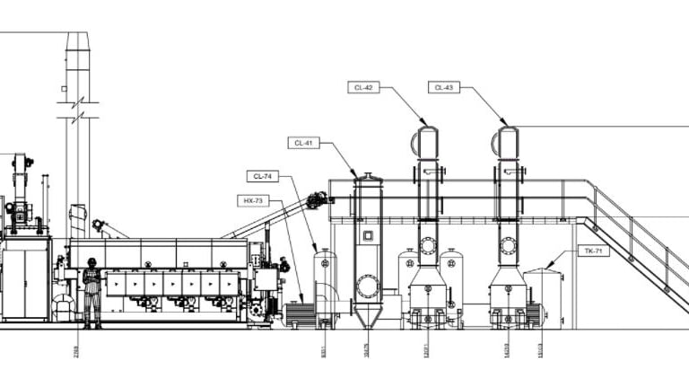
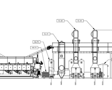
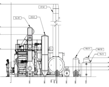
In April 2021, an extension to the Toronto Project was initiated by Anergy for CHAR Technologies (TSX:YES) in Canada to enhance an existing high-temperature pyrolysis system with Renewable Natural Gas (RNG) production capability.
The project involved adapting and retrofitting previously installed equipment to enable off-gas conversion from syngas to pipeline-quality RNG. The process design focuses on treating volatile-rich syngas through advanced gas cleaning, followed by water-gas shift, catalytic methanation, and pressure swing adsorption.
The resulting RNG is exported to nearby customers, supporting decarbonisation goals and creating additional value from biomass-derived syngas.


Throughput: 750 kg/h
Feedstock: Waste Wood
Output: Renewable Natural Gas (RNG)
Location: Canada
© 2026. All rights reserved.
transform@biomasstoenergy.com

BtE is a subsidiary of A1E1


